西宮市堤町中古戸建|関西ネット不動産

西宮市、尼崎市、伊丹市、芦屋市、宝塚市の売買仲介(ご売却・ご購入)、査定、賃貸仲介、賃貸管理は関西ネット不動産へ

西宮店0798-31-0119、尼崎店06-4950-6311、北大阪店072-737-4787、大阪南森町店06-6360-4511、新大阪店06-6152-7878

ご相談・お問い合わせ無料!(営業時間 9:00〜18:00 定休日:火曜日、水曜日)

TOP物件一覧 > 西宮市堤町中古戸建

関西ネットリフォーム 空家相続センターオープンハウス お客様の声 採用情報

販売物件情報
一覧へ戻る

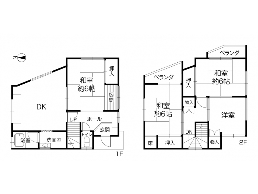
西宮市堤町中古戸建 物件ID 3583

\\閑静な住宅地で中古戸建てとして・新築用地としても検討ください//

価格 交通 土地面積 建物面積 間取り 築年数
1,980万円(税込) 阪急今津線 門戸厄神駅 徒歩約21分

71.05m² 72.49m² 3DK 昭和57年8月
新築用地としてもご検討いただけます!

新築用地としてもご検討いただけます!

画像

和室2部屋+洋室で、家族の個室やリモートワークにも対応!

  • 通路・駐車スペースとしてもご利用いただけます♪

    通路・駐車スペースとしてもご利用いただけます♪

  • DIYやリフォームをご検討されている方にもおすすめ物件です!

    DIYやリフォームをご検討されている方にもおすすめ物件です!

  • パルヤマト西宮店 約900m

    パルヤマト西宮店 約900m

  • スーパーマルハチ甲武橋店 約950m

    スーパーマルハチ甲武橋店 約950m

その他ギャラリー

担当者メッセージ
スタッフ画像

谷本 一憲

阪急今津線「門戸厄神駅」徒歩圏内!
閑静な住宅地で叶える落ち着いた暮らし♪

 

\\おすすめポイント//
●最寄り駅は阪急今津線の「門戸厄神駅」で、徒歩圏内に位置しています。大阪や神戸へのアクセスも良好で、通勤や通学に便利!
●教育環境の充実: 近隣には樋ノ口小学校や甲武中学校などの教育施設が揃っており、子育て世代にとって安心できる環境です。
●平坦な地勢: 堤町は地勢が平坦で、道も整備されているため、生活しやすいエリアです。
●地域の雰囲気: 住宅地として落ち着いた雰囲気があり、田畑や緑が広がるのんびりとした環境が魅力!!
武庫川沿いに整備された緑地で、散歩やジョギング、ピクニックに最適です。川風を感じながらリラックスできます。
●ご自身でリフォームやDIYをされた方にもおすすめ!
自分好みの理想の住まいを叶えることもできます♪

 

お問合せは物件担当:谷本(タニモト)まで!!☆ お問合せお待ちしております!!

 

リフォームページが拡大リニューアル致しました!
関西ネットリフォームHP
小規模リフォームから全面リノベーションまで、関西ネットリフォームにお任せください。
物件探しからリフォーム・リノベーションまでのワンストップサービスや、賃貸物件の空室対策リフォーム、店舗設計、解体工事まで、幅広くお手伝いさせていただきます。
楽しく、快適に暮らしていただきたいをモットーに、関西ネットリフォームでは真心を込めたリフォームをご提案致します。
こちらのホームページでは施工事例を多数掲載しておりますので是非ご覧ください!

物件情報
物件名 西宮市堤町中古戸建
所在地 西宮市堤町2-18
交通 阪急今津線 門戸厄神駅 徒歩約21分

価格 1,980万円(税込)
土地面積 71.05m²(21.49坪)
建物面積 72.49m²(21.92坪)
築年月 昭和57年8月
構造 木造
階数 2階建
方位 西
間取り 3DK
設備 洗面・トイレ・浴室 温水洗浄便座
駐車場
土地権利 所有権
用途地域 第1種中高層住居専用地域
建ぺい率 60%
容積率 200%
接道状況 一方
備考 ※リフォーム前提でご検討のお客様必見です。 ※当店はリフォーム部が併設しておりますので設備及び内装のリフォーム打合せが容易です。また、リフォームのお借入希望がございましたらご相談承りますのでお気軽に仰せください。 ※建物は現状のままでの引渡となります。 ※土地の一部は通路及び駐車スペースとして 利用するものとします。 ※再建築時には水路使用許可が必要になりま す。 ※駐車スペースは車種制限がございます。
現況 空家
引渡し 相談
取引態様 専任
小学校区 樋ノ口小学校
中学校区 甲武中学校
支払いシミュレーション

例えば、 借入額:1,980万円 金利:0.98% 借入期間:35年の場合

物件価格

1,980万円(税込)

55,708

ご相談・お問い合わせ
お名前(*)
フリガナ
郵便番号 -
都道府県
市区郡町名・番地
建物名
メールアドレス(*)
電話番号(*)
FAX番号
お問い合わせ内容(*)

その他、ご要望やコメントなどございましたら入力下さい。

ご連絡方法の指定(*)
同じエリアの物件
画像

一戸建て

新着

物件ID 3607

西宮市大畑町中古戸建※室内外全面リフォーム物件

積水ハウス施工のお家です! 室内外全面リフォーム済!南向きにて陽当たり良好! 3LDK 駐車場普通車3台可! 阪急神戸線西宮北口駅徒歩約12分! 駅までの道のりは平坦です!

所在地:
西宮市大畑町7-32
価格 交通 土地面積 建物面積 間取り 築年数
7,990万円(税込) 阪急神戸線 西宮北口駅 徒歩12分

167.88m² 90.62m² 3LDK+WIC 平成10年10月
画像

一戸建て

物件ID 3533

西宮市川東町中古戸建

所在地:
西宮市川東町10-5
価格 交通 土地面積 建物面積 間取り 築年数
1,980万円 阪神本線 香櫨園駅駅 徒歩4分
JR神戸線 さくら夙川駅駅 徒歩13分
41.75m² 52.98m² 3DK 1972年6月
画像

一戸建て

物件ID 3584

西宮市生瀬東町中古戸建 ※室内リフォーム物件

2駅利用可 JR福知山線宝塚駅 徒歩約9分 阪急宝塚線宝塚駅 徒歩約10分 駅までに道のりは平坦 自然環境がある立地! 閑静な住宅街 南向きにて陽当たり良好です! 

所在地:
西宮市生瀬東町5-4
価格 交通 土地面積 建物面積 間取り 築年数
2,280万円 JR福知山線 宝塚駅 駅 徒歩約9分
阪急宝塚線宝塚駅 徒歩約9分
66.67m² 85.83m² 4LDK 平成8年11月
画像

一戸建て

物件ID 3218

西宮市神原テラスハウス

北東角地!甲陽園駅まで徒歩9分!

所在地:
西宮市神原15-10
価格 交通 土地面積 建物面積 間取り 築年数
850万円 阪急甲陽線 甲陽園駅 徒歩9分
阪急甲陽線 苦楽園口駅 徒歩15分
44.69m² 56.6m² 4DK 昭和59年7月

■西宮市・尼崎市・芦屋市・東灘区・伊丹市・大阪市、特にJR甲子園口・JR尼崎のエリアで不動産を「売る」・「貸す」・「リフォーム」をご検討の方は、是非、関西ネット不動産にご相談下さい。
■高く売る・早く売る・広告しないで売却・こっそり売却・高く買い取りなどのご要望にもお応え致します。
■取り扱い物件は、新築住宅(戸建)・中古住宅(戸建)・マンション・土地・借地等です。また相続関係・債務整理・任意売却・住宅ローン返済にお困りの方も、弊社売却専門サイトをご覧下さい→西宮不動産売却ナビはこちら
■私の不動産いくら? 無料査定お気軽にご相談下さい。

タカセ不動産 関西ネットゴルフ 関西ネットゴルフ 堀口税理士事務所